SR50型号罗茨鼓风机
产品介绍
一:产品参数:
MSR50型号三叶罗茨鼓风机风机尺寸:[鸿广机械]长:1300mm宽:430mm高:840mm重:90Kg(重量不包括电机、进口消声器)风机口径:50mm风量:0.5--2.5m3/min升压:9.8—58.8kpa电动机:0.75--4KW标准附属品:通用底座、皮带罩、风机皮带轮、电机带轮、进口三角带、进出口消声器(带空气滤清器)、安全阀、压力表、地脚螺栓、逆止阀、弹性接头,电机,压力表开关等,另有配件客户购买时特殊说明。
二:风机底座尺寸:
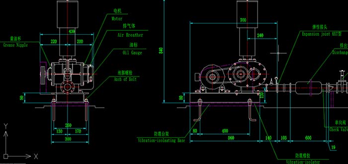
1: 长:1300mm 宽:430mm 高:840mm 重:90Kg (重量不包括电机、进口消声器)
2:风机口径:50mm 风量:0.5--2.5 m3/min
3:升压:9.8—58.8kpa 电动机:0.75--4KW
三:外形尺寸图:

四:随机配件:
通用底座、皮带罩、风机皮带轮、电机带轮、:三角带、进出口消声器(带空气滤清器)、 安全阀、压力表、地脚螺栓、电机等.专用附件(按合同要求配备):逆止阀、弹性接头、润滑油、MSR50罗茨鼓风机
五:主要特点:
1:MSR50型号三叶罗茨鼓风机具有 结构合理、体积小、升压高、效率高、风量大、噪音低、运行平稳、性能优良、使用寿命长、维修简单等优点。
2:应用领域:广泛用于污水处理、水产养殖、气力输送、真空包装、洗煤、助燃、增压、铸造、矿山、冶金、化工、轻工、建材、电力、面粉、喷砂、真空等。
六:选型参数表

SR50型号罗茨鼓风机:http://www.fengji66.cn/lc-xh/229.html
上一篇:SR65型号罗茨鼓风机
下一篇:没有了!





